Bouwjaar:
1987
Woonoppervlakte:
97 m2
Perceel:
220 m2
Omschrijving
Deze geschakelde twee-onder-een-kapwoning met inpandige garage, royale terrasoverkapping én luxe afgewerkte badkamer en toilet is werkelijk instapklaar.
Welkom in deze fijne twee-onder-een-kapwoning aan de Sleedoornstraat 93. Zodra u binnenstapt, voelt u dat dit huis met zorg is onderhouden en helemaal klaar is voor nieuwe bewoners. Met een inpandige garage, een prachtige terrasoverkapping, vier slaapkamers en een zonnige tuin op het zuiden, biedt deze woning alles wat u zoekt in een warm en comfortabel (t)huis.
De woning ligt bovendien op een rustig plekje, vlak bij een speelveldje en op loopafstand van het centrum van Echt. Een heerlijke combinatie van rust, ruimte en gemak.
Globale indeling
Deze verrassend ruime woning (ca. 410 m³) biedt op de begane grond onder andere een modern afgewerkt toilet, een sfeervolle woonkamer (ca. 30 m²), een aparte keuken met uitgebreide keukeninstallatie én een praktisch portaal met bergkast, dat toegang biedt tot de inpandige garage.
Op de eerste verdieping bevinden zich vier slaapkamers en een luxe, stijlvol afgewerkte badkamer.
De tweede verdieping is momenteel ingericht als een ruime bergzolder. Het plaatsen van een vaste trap en dakkapel biedt volop mogelijkheden voor het creëren van een extra slaapkamer, terwijl er nog steeds voldoende bergruimte behouden blijft.
Tuin
De achtertuin is een waar verlengstuk van de woning. Met een diepte van ca. 11 meter en een breedte van 9,5 meter is er genoeg ruimte voor meerdere zithoeken. De tuin is onderhoudsvriendelijk aangelegd, met een speelse border en twee terrassen. De aluminium terrasoverkapping over de volledige breedte van de woning zorgt ervoor dat u vrijwel het hele jaar door van het buitenleven kunt genieten. Dankzij de ligging op het zuiden profiteert u van veel zon en tegelijkertijd van optimale privacy.
Algemeen en verduurzaming
De woning is gebouwd in 1987 en beschikt over een degelijk isolatiepakket, waaronder dak-, spouwmuur- en vloerisolatie. In 2022 zijn de kunststof kozijnen vernieuwd en voorzien van HR++ beglazing. Op de verdieping zijn rolluiken geplaatst voor extra comfort. De HR-combiketel is vernieuwd in 2021, evenals de mechanische ventilatie-unit in 2022. Bovendien zijn er 8 zonnepanelen geplaatst. Het energielabel van de woning is B.
Ligging
De Sleedoornstraat is een rustige straat waar kinderen veilig buiten kunnen spelen en buren elkaar nog kennen. Toch ligt alles wat u nodig heeft dichtbij: winkels, scholen, sportclubs en het NS-station van Echt zijn op loopafstand. Wilt u er even op uit? Binnen enkele minuten bereikt u de A2 en A73 richting Maastricht, Eindhoven, Venlo of zelfs Düsseldorf.
Natuurliefhebbers halen hun hart op in de nabijgelegen gebieden ‘De Doort’ en ’t Kranenbroek’, perfect voor een wandeling of fietstocht.
Indeling
Begane grond – samen genieten
Via de voordeur stapt u binnen in een uitnodigende hal met garderobe, meterkast, trapopgang en een modern en luxe afgewerkt toilet met zwevend closet en fonteintje. Vanuit hier loopt u door naar de woonkamer. De doorzonwoonkamer (30m²) voelt direct warm en licht aan dankzij de grote ramen aan de voor- en achterzijde. Er is ruimte genoeg voor zowel een gezellige zithoek bij de tv als een royale eethoek. De vloer in antraciet siergrind geeft een strak en verzorgd geheel. De keuken in hoekopstelling is een fijne plek om te koken. U vindt hier alle apparatuur die u nodig heeft, waaronder een gaskookplaat, afzuigkap, koelkast, oven en vaatwasser. Dankzij de directe doorgang naar de overdekte terrasruimte loopt u op zomerse dagen moeiteloos met uw bord naar buiten.
Vanuit een tussenportaal met praktische bergkast bereikt u de inpandige garage. Ideaal voor fietsen, de wasruimte (met witgoedaansluitingen) of gewoon als extra opslag. De garage is bovendien voorzien van een elektrische sectionaalpoort, wat zorgt voor extra gemak.
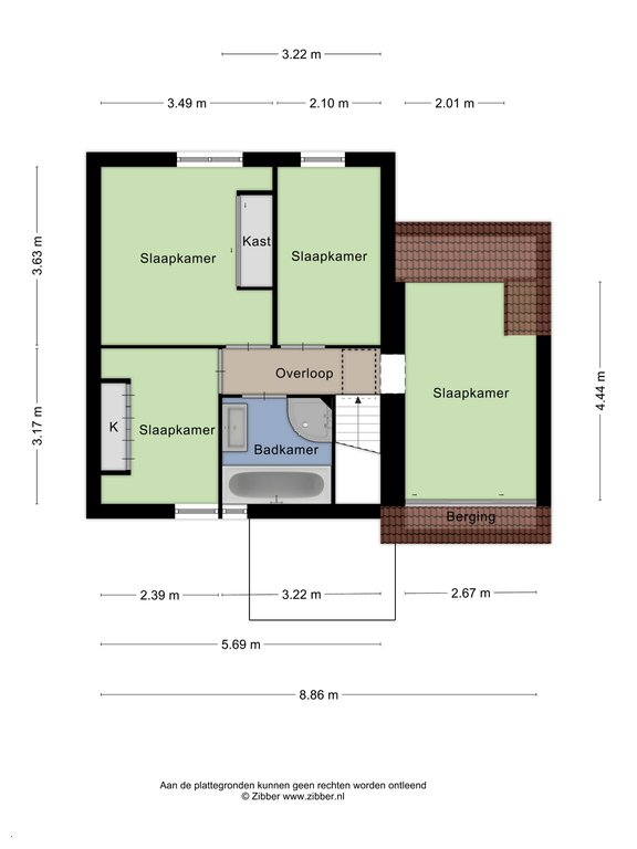
Eerste verdieping – rust en ruimte
Op de eerste verdieping bevinden zich vier ruime slaapkamers, elk met een eigen charme. Dankzij de nette afwerking met dezelfde antracietkleur siergrindvloer vormen ze een rustig en strak geheel. De kamers zijn flexibel in te delen: van ouderslaapkamer tot kinderkamer, werkkamer of logeerkamer. De badkamer is modern en stijlvol, volledig betegeld en uitgerust met een comfortabele inloopdouche en een wastafelmeubel met lades. Een plek waar u ’s ochtends fris begint en ’s avonds ontspannen de dag afsluit.
Tweede verdieping – volop ruimte
De tweede verdieping is momenteel ingericht als een ruime bergzolder. Het plaatsen van een vaste trap en dakkapel biedt volop mogelijkheden voor het creëren van een extra slaapkamer, terwijl er nog steeds voldoende bergruimte behouden blijft.
Tuin
De achtertuin is een waar verlengstuk van de woning. Met een diepte van ca. 11 meter en een breedte van 9,5 meter is er genoeg ruimte voor meerdere zithoeken. De tuin is onderhoudsvriendelijk aangelegd, met een speelse border en twee terrassen. De aluminium terrasoverkapping over de volledige breedte van de woning zorgt ervoor dat u vrijwel het hele jaar door van het buitenleven kunt genieten. Dankzij de zuidligging profiteert u van veel zon en tegelijkertijd van optimale privacy.
Algemeen
De woning aan de Sleedoornstraat 93 is gebouwd in 1987, maar voelt dankzij het zorgvuldige onderhoud en de vele verbeteringen helemaal van nu. Alles is netjes afgewerkt en met aandacht bewoond, waardoor u hier letterlijk de sleutel kunt omdraaien en direct kunt gaan wonen – zonder verbouwingsstress.
De woning heeft een inhoud van ca. 410m³ en staat op een perceel van 220m². Dit maakt het huis ruim genoeg voor een gezin, maar toch overzichtelijk en onderhoudsvriendelijk. De kunststof kozijnen zijn voorzien van HR++ beglazing, en vrijwel alle ramen zijn uitgerust met rolluiken: ideaal voor extra privacy, comfort en veiligheid.
Ook op het gebied van energie en duurzaamheid is het huis goed voorbereid. De woning beschikt over een degelijk isolatiepakket, waaronder dak-, spouwmuur- en vloerisolatie. In 2022 zijn de kunststof kozijnen vernieuwd en voorzien van HR++ beglazing. Op de verdieping zijn rolluiken geplaatst voor extra comfort. De HR-combiketel is vernieuwd in 2021, evenals de mechanische ventilatie-unit in 2022. Bovendien zijn er 8 zonnepanelen geplaatst, welke bijdragen aan lagere energiekosten en een kleinere ecologische voetafdruk. Daarmee combineert deze woning modern wooncomfort met een toekomstbestendige aanpak.
Kortom: een huis dat klaarstaat om uw nieuwe thuis te worden.
Onze presentatiebrochures en advertenties worden met grote zorgvuldigheid vervaardigd.
Aan eventuele afwijkingen op de gegeven informatie en tekeningen kunnen geen rechten worden ontleend.
Kenmerken
| Overdracht | |
| Koopprijs | € 350.000,- k.k. |
| Status | Verkocht |
| Aanvaarding | In overleg |
| Bouw | |
| Type object | Woonhuis |
| Bouwjaar | 1987 |
| Soort | Eengezinswoning |
| Type | Geschakelde twee onder één kapwoning |
| Dak type | Zadeldak |
| Isolatievormen | Dakisolatie, Muurisolatie, Vloerisolatie, Volledig geïsoleerd |
| Oppervlaktes en inhoud | |
| Woonoppervlakte | 97 m2 |
| Perceel | 220 m2 |
| Inhoud | 410 m3 |
| Indeling | |
| Aantal kamers | 7 |
| Aantal slaapkamers | 4 |
| Aantal badkamers | 1 |
| Locatie | |
| Ligging | Aan rustige weg, In woonwijk, In bosrijke omgeving |
| Tuin | |
| Type | Achtertuin, Voortuin |
| Staat | Fraai aangelegd |
| Ligging | Zuid |
| Achterom | Nee |
| Energieverbruik | |
| Energielabel | B |
| Uitrusting | |
| Soorten warm water | CV ketel |
| Parkeer faciliteiten | Op eigen terrein |