Bouwjaar:
1965
Woonoppervlakte:
85 m2
Perceel:
226 m2
Omschrijving
Deze charmante en goed verzorgde twee-onder-een-kapwoning met een grote garage (24m²) en een ruime overkapping (26m²) ligt op een royaal perceel van 226m², op een zeer geliefde locatie nabij het centrum van Susteren.
Met een woonoppervlakte van 82m² en een inhoud van 415m³ (incl. garage) is dit een fijne en praktische woning, zeer geschikt voor starters.
Globale indeling
De woning is gelegen in een rustige, groene straat waar je prettig woont, met volop rust en privacy.
De circa 16 meter diepe achtertuin ligt op het zuidwesten, waardoor je hier heerlijk van de zon kunt genieten.
Op de begane grond vind je onder andere een ruime en sfeervolle ‘L-vormige’ woonkamer met gaskachel (23m²),
een separate eetkeuken (9m²) met een nette keukeninstallatie en via de grote overkapping is er toegang tot de ruime garage / zeer praktische berging.
Op de eerste verdieping bevinden zich drie volwaardige slaapkamers en een ruime badkamer.
Daarnaast beschikt de woning over een handige bergzolder.
Tuin
De tuin maakt het geheel helemaal af. De achtertuin is circa 16 meter diep en 9 meter breed en is netjes onderhouden.
Dankzij de gunstige ligging en situering geniet je hier van veel zon en volop privacy. De ruime en brede oprit is bovendien iedere dag weer erg prettig in gebruik.
Algemeen
De woning is gebouwd in 1965 en altijd keurig onderhouden. De platte daken zijn in 2012 vernieuwd. De woning is grotendeels voorzien van hardhouten kozijnen en in de woonkamer van dubbele / HR-beglazing. In 2019 is een nieuwe verwarmingsketel geplaatst (Remeha HR Combi Celenta 28C / eigendom).
Een verzorgde woning met een degelijke basis en volop mogelijkheden.
Locatie
Alle voorzieningen, scholen en het NS-station bevinden zich op loopafstand van de woning. Susteren ligt zeer centraal in de regio en uitvalswegen zoals de N276 en de A2 zijn snel bereikbaar. Ook natuurgebied ‘IJzerenbos’, waar je kunt genieten van bos, grasland en akkers, ligt in de directe omgeving.
Een verrassend ruime woning met veel mogelijkheden. Maak snel een afspraak voor een bezichtiging!
Indeling
Souterrain
Provisiekelder 2.65 x 2.93m. en de opstelplaats van de verwarmingsketel
Begane Grond
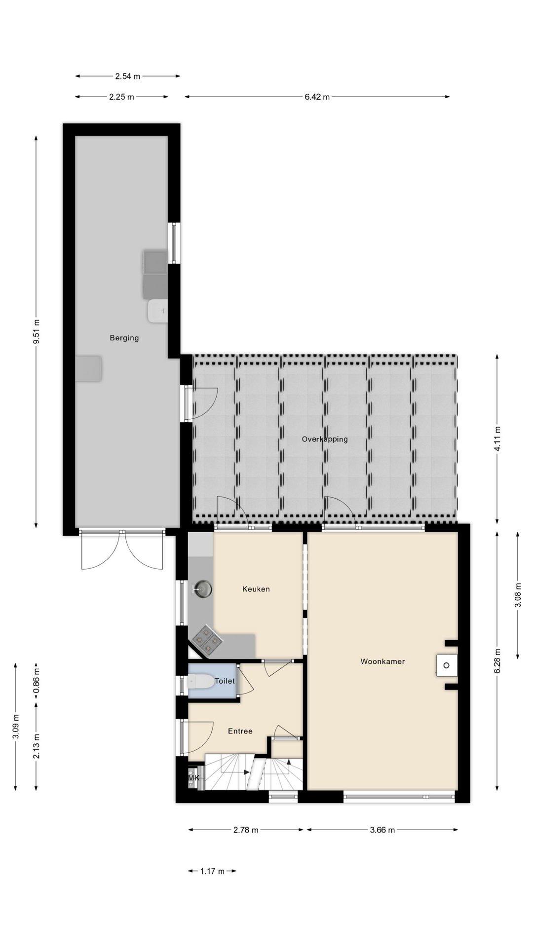
Hal / entree met meterkast, garderobe, bergkast en toegang tot het gastentoilet.
De ruime ‘L-vormige’ woonkamer (23m²) met sfeervol houten balkenplafond is voorzien van een gaskachel — ideaal voor gezellige herfst- en winteravonden. De glazen pui met loopdeur in de achtergevel zorgt voor veel lichtinval en een mooi contact met de overkapping (26m²) en de tuin. Via een fraaie bar staat de woonkamer in directe verbinding met de eetkeuken. De eetkeuken is 9m² groot en voorzien van vloerverwarming en een degelijke eikenhouten keukeninstallatie met de volgende apparatuur: gaskookplaat, afzuigkap, oven en koelkast.
Ook vanuit de keuken is er via een raampartij met loopdeur prettig contact met de tuin. Daarnaast biedt de keuken toegang tot de ruime overkapping, die weer leidt naar de grote garage / praktische bijkeuken-berging.
In de bijkeuken / berging bevinden zich de aansluitingen voor het witgoed.
Garage / ruime berging
De ruime en brede oprit geeft toegang tot de garage (9.51 x 2.25m.). Dagelijks bijzonder handig en praktisch.
De garage is netjes onderhouden en voorzien van elektra en een keukenblok. Via een loopdeur is er toegang tot de tuin.
Eerste Verdieping
Overloop met toegang tot drie ruime slaapkamers en de badkamer.
De slaapkamers zijn respectievelijk 3.65 x 3.53m., 3.65 x 2.69m. en 2.78 x 2.57m. groot.
De comfortabele, volledig betegelde badkamer is voorzien van een douche en wastafel.
Tweede Verdieping
Bereikbaar via een mangat. Bergzolder.
Tuin
De tuin maakt het plaatje absoluut compleet. De achtertuin is circa 16 meter diep en 9 meter breed, netjes onderhouden en gesitueerd op het zuiden. Door de gunstige ligging geniet je hier van een uitstekende bezonning en veel privacy.
Daarnaast is er een houten buitenberging aanwezig. De ruime en brede oprit is dagelijks bijzonder praktisch.
Algemeen
Het betreft een goed onderhouden woning. De platte daken zijn in 2012 vernieuwd. De woning is grotendeels voorzien van hardhouten kozijnen en in de woonkamer van dubbele / HR-beglazing. In 2019 is een nieuwe verwarmingsketel geplaatst (Remeha HR Combi Celenta 28C / eigendom). Een woning met een degelijke basis. Energielabel: D.
Locatie
De woning is gelegen op een rustige en prettige locatie in een woonwijk aan de rand van het centrum.
Een geliefde woonomgeving met een groene opzet en een gezellige uitstraling, nabij voorzieningen, scholen en het NS-station. Susteren heeft een uitstekende centrale ligging. Via de N276 en de A2 zijn steden als Maastricht, Eindhoven, Venlo, Aken en Düsseldorf binnen circa 30–45 autominuten bereikbaar. Natuurgebied ‘IJzerenbos’ ligt zelfs op loopafstand van de woning.
Onze presentatiebrochures en advertenties worden met zorg samengesteld.
Aan eventuele afwijkingen in de vermelde informatie en tekeningen kunnen geen rechten worden ontleend.
Kenmerken
| Overdracht | |
| Koopprijs | € 269.000,- k.k. |
| Status | Verkocht onder voorbehoud |
| Aanvaarding | In overleg |
| Bouw | |
| Type object | Woonhuis |
| Bouwjaar | 1965 |
| Soort | Eengezinswoning |
| Type | Twee onder één kapwoning |
| Dak type | Zadeldak |
| Isolatievormen | Vloerisolatie, Gedeeltelijk dubbelglas, HR glas |
| Oppervlaktes en inhoud | |
| Woonoppervlakte | 85 m2 |
| Perceel | 226 m2 |
| Inhoud | 400 m3 |
| Indeling | |
| Aantal kamers | 8 |
| Aantal slaapkamers | 3 |
| Aantal badkamers | 1 |
| Locatie | |
| Ligging | In centrum, In bosrijke omgeving |
| Tuin | |
| Type | Achtertuin, Voortuin |
| Staat | Verzorgd |
| Ligging | Zuid |
| Achterom | Ja |
| Energieverbruik | |
| Energielabel | D |
| Uitrusting | |
| Soorten warm water | CV ketel |
| Parkeer faciliteiten | Op eigen terrein |