Bouwjaar:
1980
Woonoppervlakte:
104 m2
Perceel:
319 m2
Omschrijving
Aan de Oude Rijksweg Noord 8-C in Susteren staat deze verrassend ruime halfvrijstaande woning waar comfort, sfeer en energiezuinig wonen op natuurlijke wijze samenkomen. De woning werd gebouwd in 1980 en in 2019 grondig gerenoveerd, waardoor u hier profiteert van een solide basis met een moderne, instapklare afwerking.
Met energielabel B, 11 zonnepanelen, airconditioning (Inverter) en een Vaillant cv-installatie uit 2020 bent u verzekerd van comfortabel wonen met beheersbare energielasten. Binnen beschikt de woning o.a. over een prachtige en royale woonkamer met open keuken, welke is uitgerust met een luxe en modern afgewerkt installatie en drie volwaardige slaapkamers. Lichte leefruimtes die prettig in elkaar overlopen. Buiten geniet u van een privacyvolle, op het zuiden gelegen achtertuin met een luxe aluminium overkapping uit 2024, compleet met shutters en buitenkeuken (ter overname) – een plek waar u het hele jaar door kunt ontspannen.
De ruime oprit biedt plaats aan meerdere auto’s en de inpandige garage (met elektrische poort en laadpaal) en diverse bergruimtes in het souterrain maken het geheel extra praktisch. Een woning die niet alleen technisch goed in orde is, maar vooral ook aanvoelt als een warm en compleet thuis.
Globale indeling
De woning is praktisch én verrassend ruim opgezet, met meerdere volwaardige woonlagen die elk hun eigen functie en karakter hebben.
In het souterrain bevindt zich een royale garage met elektrische poort, aangevuld met diverse bergingen en een multifunctionele ruimte. Deze verdieping biedt niet alleen plaats aan uw auto en fietsen, maar leent zich ook uitstekend voor hobby, opslag of zelfs werken aan huis.
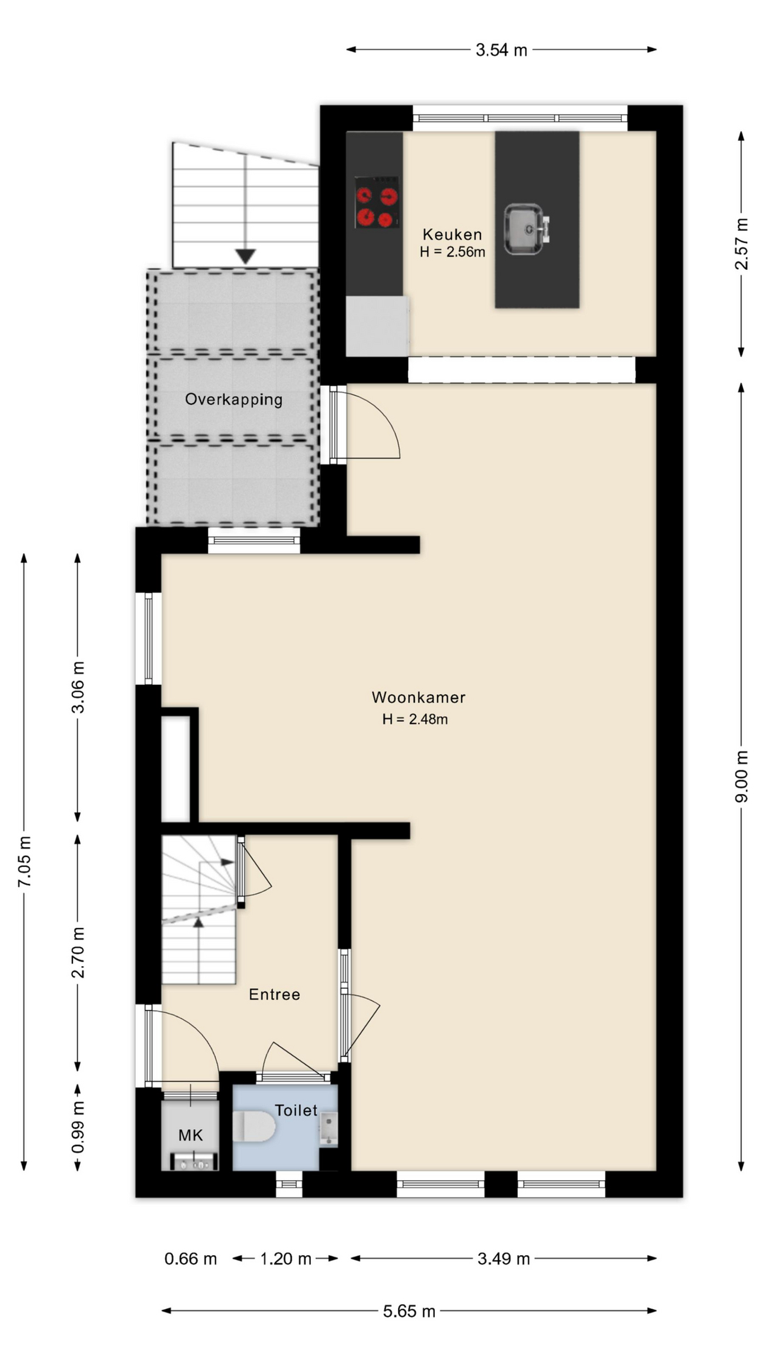
Op de begane grond ervaart u direct de prettige lichtinval in de T-vormige woonkamer. De massief eikenhouten vloer geeft de ruimte warmte en karakter, terwijl de indeling zorgt voor een natuurlijke scheiding tussen zit- en eetgedeelte. Aansluitend bevindt zich de moderne open keuken uit 2019 met spoeleiland – een centrale plek in huis waar koken en samenzijn moeiteloos samenkomen.
De eerste verdieping beschikt over drie volwaardige slaapkamers van goed formaat, waardoor het huis geschikt is voor gezinnen, thuiswerkers of logees. De complete badkamer is praktisch ingericht en van alle gemakken voorzien.
Via een vlizotrap bereikt u de bergzolder: ideaal voor het netjes opbergen van spullen die u niet dagelijks nodig heeft.
En dan de buitenruimte: als kers op de taart beschikt de woning over een zonnige, op het zuiden gelegen achtertuin met een luxe aluminium overkapping. Een heerlijke plek om te ontspannen en te genieten van het buitenleven, met extra comfort dankzij de shutters en de aanwezige buitenkeuken (ter overname).
Tuin en berging
De achtertuin is ruim opgezet, fraai aangelegd en heerlijk op het zuiden gelegen. Hier geniet u van rust, privacy en volop zon. Of u nu wilt ontspannen met een goed boek of uitgebreid wilt tafelen met vrienden en familie – deze tuin biedt het allemaal.
In 2024 is een hoogwaardige aluminium overkapping geplaatst, voorzien van stijlvolle shutters en een prachtige buitenkeuken (ter overname). Een plek waar binnen en buiten moeiteloos in elkaar overlopen en waar u het buitenseizoen aanzienlijk verlengt.
Het souterrain biedt daarnaast volop praktische bergruimte en een royale inpandige garage. Ideaal voor hobby, opslag of gewoon lekker veel extra ruimte.
Algemene informatie
Deze degelijk gebouwde woning uit 1980 is in 2019 volledig gerenoveerd en is bijzonder goed verzorgd; ‘instapklaar’. Met energielabel B, 11 zonnepanelen, airconditioning (Inverter) en een Vaillant Ecotec Plus 35-38 CW5 cv-installatie uit 2020 (eigendom) is het energieverbruik comfortabel en beheersbaar.
De gehele woning is voorzien van kunststof kozijnen met dubbel glas (met uitzondering van de voor- en achterdeur). De badkamer beschikt over elektrische vloerverwarming. In het souterrain is krachtstroom aanwezig en de garage is uitgerust met een elektrische sectoraalpoort en een laadpaal voor een elektrische auto.
De ruime oprit biedt plaats aan meerdere voertuigen. Kortom: een solide woning met moderne installaties en lage energielasten, helemaal klaar voor de toekomst.
• Bouwjaar: 1980
• Volledig gerenoveerd: 2019
• Energielabel: B
• 11 zonnepanelen (eigendom) en Airconditioning
• CV-installatie: Vaillant Ecotec Plus 35-38 CW5 (2020, eigendom)
• Kunststof kozijnen met dubbel glas
• Elektrische vloerverwarming in badkamer
• Elektrische sectionaal poort
• Elektrische laadpaal aanwezig
• Krachtstroom in souterrain
• Grote oprit met meerdere parkeerplaatsen
Specifieke indeling
Souterrain
Het souterrain is echt een pluspunt van deze woning. Aan de voorzijde bevindt zich de royale garage met elektrische sectionaal poort en laadpaal. Er is meer dan voldoende ruimte voor een auto, fietsen en extra opslag. Tevens is hier een praktisch keukenblok geplaatst.
Aansluitend vindt u meerdere bergingen. Perfect voor provisie, hobby, werkruimte of het netjes opbergen van spullen. In één van de bergingen is de Vaillant Ecotec Plus cv-installatie uit 2020 geplaatst. Daarnaast is er in een aparte ruimte krachtstroom aanwezig.
Via een separate hal met eigen buitentoegang is het souterrain ook zeer geschikt voor werken aan huis. In deze hal/bijkeuken bevinden zich tevens de aansluitingen voor wasmachine en droger.
Begane grond
Via de entree komt u binnen in een verzorgde hal met meterkast, trapopgang naar de eerste verdieping en het souterrain en een moderne, luxe gastentoilet.
De T-vormige woonkamer is ruim en licht, met massief eikenhouten plankenvloer die direct voor sfeer zorgt. Aan de voorzijde creëert u eenvoudig een gezellige zithoek. Aan de voorzijde heeft u een mooi zicht op het Raadhuisplein.
Aan de achterzijde loopt de woonkamer over in de eetkamer, die in open verbinding staat met de keuken. De keuken (2019) is modern en praktisch ingericht met veel werk- en bergruimte. Het spoeleiland vormt het hart van de ruimte – een fijne plek om samen te komen tijdens het koken.
De keuken is voorzien van een inductiekookplaat, afzuigkap, combioven, koelkast, vaatwasser en een composiet spoelbak. Vanuit hier stapt u direct onder de overkapping en de tuin in.
Eerste verdieping
De eerste verdieping beschikt over een betondekvloer, kunststof kozijnen en dubbel glas.
De overloop geeft toegang tot drie slaapkamers van goed formaat:
• Master bedroom van ca. 5,99 x 2,90 meter
• Slaapkamer aan de voorzijde van ca. 2,88 x 3,51 meter
• Derde slaapkamer van ca. 2,99 x 2,60 meter
Alle kamers zijn geschikt als volwaardige slaap- of werkkamer. In de kleinste slaapkamer bevindt zich een vlizotrap naar de bergzolder.
De badkamer is compact maar compleet en voorzien van een inloopdouche, dubbele wastafel met meubel, toilet en elektrische vloerverwarming – comfortabel en praktisch ingericht.
Zolder
Via de vlizotrap bereikt u de bergzolder. Ideaal voor het opbergen van seizoensspullen en andere zaken die u niet dagelijks nodig heeft.
Locatie
De woning is gelegen op een rustige en prettige locatie in een woonwijk aan de rand van het centrum.
Een geliefde woonomgeving met een groene opzet en een gezellige uitstraling, nabij voorzieningen, scholen en het NS-station. Susteren heeft een uitstekende centrale ligging. Via de N276 en de A2 zijn steden als Maastricht, Eindhoven, Venlo, Aken en Düsseldorf binnen circa 30–45 autominuten bereikbaar. Natuurgebied ‘IJzerenbos’ ligt zelfs op loopafstand van de woning.
Zoekt u een instapklare, energiezuinige woning met verrassend veel ruimte, een multifunctioneel souterrain en een heerlijke tuin? Dan is Oude Rijksweg Noord 8-C absoluut een bezichtiging waard.
Onze presentatiebrochures en advertenties worden met zorg samengesteld.
Aan eventuele afwijkingen in de vermelde informatie en tekeningen kunnen geen rechten worden ontleend.
Kenmerken
| Overdracht | |
| Koopprijs | € 375.000,- k.k. |
| Status | Beschikbaar |
| Aanvaarding | In overleg |
| Bouw | |
| Type object | Woonhuis |
| Bouwjaar | 1980 |
| Soort | Eengezinswoning |
| Type | Twee onder één kapwoning |
| Dak type | Zadeldak |
| Isolatievormen | Dakisolatie, Muurisolatie, Dubbelglas |
| Oppervlaktes en inhoud | |
| Woonoppervlakte | 104 m2 |
| Perceel | 319 m2 |
| Inhoud | 560 m3 |
| Indeling | |
| Aantal kamers | 6 |
| Aantal slaapkamers | 3 |
| Aantal badkamers | 1 |
| Locatie | |
| Ligging | In centrum, In woonwijk, In bosrijke omgeving |
| Tuin | |
| Type | Achtertuin, Voortuin |
| Staat | Fraai aangelegd |
| Ligging | Zuid |
| Achterom | Ja |
| Energieverbruik | |
| Energielabel | B |
| Uitrusting | |
| Soorten warm water | CV ketel |
| Parkeer faciliteiten | Op eigen terrein |