Bouwjaar:
1975
Woonoppervlakte:
118 m2
Perceel:
150 m2
Omschrijving
Verrassend ruime en instapklare woning met overkapping en berging
Op zoek naar een sfeervolle, goed onderhouden woning met verrassend veel ruimte én een heerlijke tuin? Dan is deze woning aan de Magnoliastraat 27 misschien wel precies wat jullie zoeken! Deze verrassend ruime tussenwoning is modern afgewerkt, heeft een prachtige overkapping, handige berging en is gelegen in een rustige, verkeersluwe straat. Hier woon je comfortabel en rustig, met alle voorzieningen vlakbij.
Indeling in vogelvlucht
Met een woonoppervlak van ca. 118 m² is deze woning opvallend ruim. Op de begane grond vind je een gezellige woonkamer, een luxe open keuken en een modern toilet. De eerste verdieping telt twee (voorheen drie) royale slaapkamers en een moderne badkamer. De tweede verdieping biedt een ruime zolderkamer en extra bergruimte. Kortom: een woning met volop leefruimte én mogelijkheden!
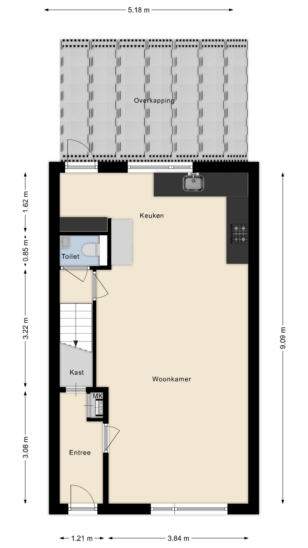
Begane grond
Bij binnenkomst stap je in de hal met garderobe, vernieuwde meterkast en een praktische trap-/bergkast. Vanuit de hal loop je door naar de woonkamer. De woonkamer is licht en sfeervol, met een moderne antracietkleurige tegelvloer en grote ramen die zorgen voor een prettige lichtinval. Een fijne plek om tot rust te komen of gezellig samen te zijn.
De open eetkeuken sluit mooi aan op de woonkamer en is voorzien van een luxe keukenopstelling met veel werk- en opbergruimte. Hier vind je alle benodigde inbouwapparatuur: een gaskookplaat, afzuigkap, koelkast, oven en vaatwasser. Een leuk detail is het aparte koffiehoekje. Via de loopdeur in de keuken heb je direct toegang tot de tuin en de fraaie overkapping – ideaal voor binnen-buitenleven! In de tussenhal bevindt zich het modern afgewerkte gastentoilet en de trapopgang naar boven.
Eerste verdieping
De eerste verdieping bereik je via een vaste trap. De centrale overloop geeft toegang tot twee ruime slaapkamers, een inloopkast en de badkamer.
• Slaapkamer 1 (ca. 26 m²) is de master bedroom en beschikt over een eigen dressing. Deze dressing was voorheen een aparte slaapkamer en kan eenvoudig worden teruggebracht in oorspronkelijke staat.
• Slaapkamer 2 (ca. 12 m²) ligt aan de achterzijde van de woning.
De badkamer is modern en stijlvol afgewerkt, volledig betegeld en voorzien van een whirlpool ligbad, ruime inloopdouche met glazen wand, een tweede toilet én een dubbele wastafel met meubel en spiegel. Luxe en comfort komen hier samen!
Tweede verdieping
Ook de tweede verdieping is via een vaste trap bereikbaar. Hier tref je een ruime zolderkamer aan, voorzien van een dakraam, laminaatvloer en een kastenwand met schuifdeuren. Perfect als extra slaapkamer, werkkamer of hobbyruimte.
Daarnaast is er een aparte berging met de aansluitingen voor wasmachine en droger, én de opstelplaats van de CV-ketel (huur, vernieuwd in 2021).
Tuin en buitenruimte
De achtertuin is ca. 13 meter diep en 5,5 meter breed, fraai en onderhoudsvriendelijk aangelegd. De aluminium overkapping van 18 m² met helder glas maakt dit tot een heerlijke plek om buiten te zitten – weer of geen weer. Dankzij de gunstige ligging en de besloten ligging geniet je hier van veel privacy. De tuin beschikt aanvullende over een ruime gemetselde berging. Achterom aanwezig voor extra gemak.
Algemene kenmerken
• Bouwjaar: 1975
• Perceeloppervlakte: 150 m²
• Woonoppervlakte: ca. 118 m²
• Goed geïsoleerd (dakisolatie, grotendeels HR++ beglazing)
• Hardhouten kozijnen
• Verwarmingsketel uit 2021 (huur)
• Grondig gemoderniseerd in de afgelopen 10-15 jaar
• Energielabel B
Locatie
Deze woning ligt in een rustige, prettige woonstraat, op loopafstand van het centrum van Echt. Alle dagelijkse voorzieningen – zoals winkels, supermarkten, scholen en sportclubs – zijn makkelijk bereikbaar, net als het NS-station. Een ideale plek voor wie centraal, maar toch rustig wil wonen.
Ook qua bereikbaarheid zit je hier goed: de uitvalswegen N276, A2 en A73 liggen om de hoek. Zo ben je snel onderweg, zowel lokaal als regionaal.
Voor natuurliefhebbers zijn er volop mogelijkheden in de buurt: denk aan de natuurgebieden ’t Kranenbroek en De Doort of de Maasplassen bij Stevensweert en Ohé en Laak. Heerlijk wandelen, fietsen of ontspannen in de natuur – het ligt hier allemaal binnen handbereik.
Nieuwsgierig geworden?
Willen jullie zelf ervaren wat deze verrassend ruime en sfeervolle woning allemaal te bieden heeft? Neem dan snel contact op voor een bezichtiging. Magnoliastraat 27 in Echt is instapklaar en wacht op haar nieuwe bewoners – misschien wel jullie!
Let op: Onze verkoopinformatie is met zorg samengesteld. Toch kunnen aan deze presentatie geen rechten worden ontleend.
Kenmerken
| Overdracht | |
| Koopprijs | € 289.000,- k.k. |
| Status | Verkocht |
| Aanvaarding | In overleg |
| Bouw | |
| Type object | Woonhuis |
| Bouwjaar | 1975 |
| Soort | Eengezinswoning |
| Type | Tussenwoning |
| Dak type | Zadeldak |
| Isolatievormen | Dakisolatie, Gedeeltelijk dubbelglas |
| Oppervlaktes en inhoud | |
| Woonoppervlakte | 118 m2 |
| Perceel | 150 m2 |
| Inhoud | 375 m3 |
| Indeling | |
| Aantal kamers | 7 |
| Aantal slaapkamers | 4 |
| Aantal badkamers | 1 |
| Locatie | |
| Ligging | Aan rustige weg, In woonwijk |
| Tuin | |
| Type | Achtertuin, Voortuin |
| Staat | Fraai aangelegd |
| Ligging | Noordoost |
| Achterom | Ja |
| Energieverbruik | |
| Energielabel | B |
| Uitrusting | |
| Soorten warm water | CV ketel |
| Parkeer faciliteiten | |