Bouwjaar:
1987
Woonoppervlakte:
150 m2
Perceel:
494 m2
Omschrijving
Stijlvol & ruim wonen met prachtig uitzicht over de landerijen
Deze ruime vrijstaande woning met kelder, aanbouw, carport, royale garage én bergingen heeft werkelijk alles wat je je maar kunt wensen. Perfect onderhouden, luxe afgewerkt, een prachtige uitbouw, vijf slaapkamers en een energielabel B. Een complete gezinswoning op een uitzonderlijk mooie locatie!
Met een perceel van maar liefst 494 m² én vrij uitzicht over de landerijen is het hier heerlijk wonen.
Rustig gelegen aan het einde van een doodlopende straat in Maasbracht – een unieke plek!
Globale Indeling
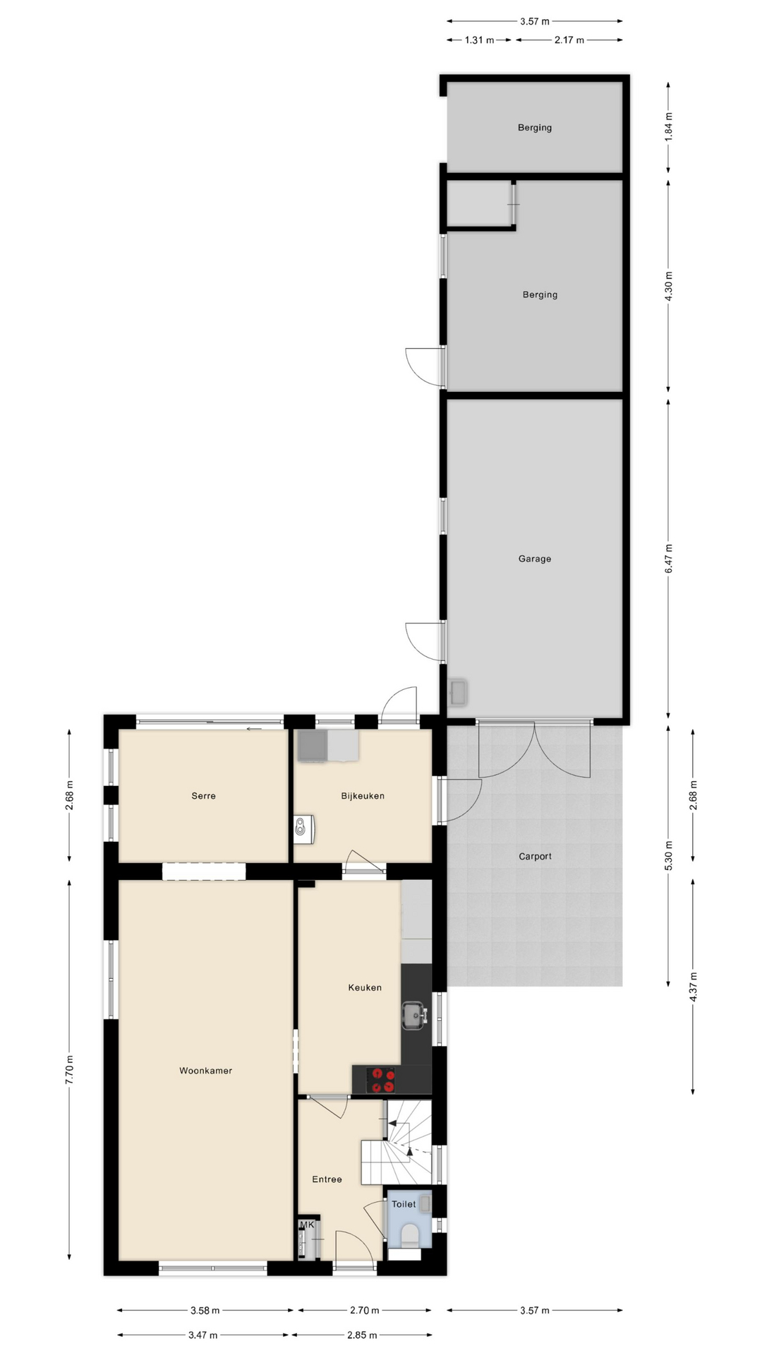
Met een woonoppervlak van circa 150 m² en een inhoud van ongeveer 650 m³ is deze woning royaal te noemen. Bij binnenkomst tref je een stijlvolle hal met luxe toiletruimte. De lichte doorzonwoonkamer sluit naadloos aan op een sfeervolle tuinkamer, samen goed voor 38 m² aan leefruimte. De moderne tegelvloer en grote raampartijen zorgen voor een aangename, open sfeer met prachtig zicht op de tuin. De separate eetkeuken (12 m²) is ingericht met een eigentijdse en luxe keukenopstelling. Via de keuken bereik je de handige bijkeuken. Op de eerste verdieping bevinden zich drie comfortabele slaapkamers en een fraai afgewerkte badkamer. Alles straalt rust, ruimte en kwaliteit uit. Via een vaste trap bereik je de tweede verdieping, waar nog eens twee volwaardige slaapkamers zijn gerealiseerd. Een zee aan ruimte – ideaal voor een groot gezin, thuiswerken of hobby’s.
Dubbele oprit, carport en ruime garage
Aan de rechterzijde van de woning ligt een royale oprit met carport, die toegang biedt tot de grote garage van 23 m². Deze garage is netjes afgewerkt, voorzien van dak- en muurisolatie, veel bergruimte én een smeerput – ideaal voor de klusser of autoliefhebber.
Achter de garage bevinden zich nog twee extra bergingen (22 m² totaal). Ook aan de linkerkant van het huis is een tweede oprit – perfect voor het parkeren van een camper, caravan of aanhangwagen. Een mooie houten poort biedt toegang tot de tuin en het achtererf.
Buitenleven met vrij uitzicht
De tuin maakt het plaatje helemaal compleet.
Zowel de voor-, zij- als achtertuin zijn met zorg aangelegd en uitstekend onderhouden.
De achtertuin – circa 14 meter diep en 13 meter breed – is werkelijk een oase van rust. Met twee grote terrassen, een stijlvolle overkapping, fraaie borders én een adembenemend vrij uitzicht over de landerijen, is dit dé plek om van het buitenleven te genieten. Of je nu houdt van tuinieren, loungen of samen eten in de buitenlucht: hier kan het allemaal!
Duurzaam & energiezuinig
De woning is gebouwd in 1987 en goed geïsoleerd (dak-, spouw- en vloerisolatie). Voorzien van hardhouten kozijnen met HR-glas en deels rolluiken. De begane grond beschikt over vloerverwarming en de cv-installatie (Nefit HR-combiketel) zorgt voor aangenaam comfort. Daarbovenop zijn er 10 zonnepanelen aanwezig, wat zorgt voor lagere energielasten. Niet voor niets draagt deze woning energielabel B!
Ligging & bereikbaarheid
Je vindt deze woning in een rustige, doodlopende straat aan de rand van Maasbracht – met weids uitzicht over de omliggende velden.
Maasbracht is gelegen aan de Maas en de autosnelwegen A2 en A73, wat zorgt voor een uitstekende bereikbaarheid. Het dorp biedt een compleet voorzieningenaanbod met winkels, basisscholen, sportclubs en recreatiemogelijkheden aan de Maasplassen. Middelbaar onderwijs is bereikbaar op slechts 10 minuten fietsen.
Dankzij de gunstige ligging zijn steden als Maastricht, Roermond, Venlo, Eindhoven en zelfs Düsseldorf goed en snel bereikbaar.
Een absolute topper – kom kijken!
Deze woning biedt écht alles: ruimte, comfort, luxe afwerking, rust en een unieke ligging.
Zowel van binnen als buiten tot in de puntjes verzorgd.
Een bezichtiging is méér dan de moeite waard – je bent van harte welkom!
Indeling van de woning
Souterrain
In het souterrain bevindt zich een praktische provisiekelder van circa 9 m², afgewerkt met een nette tegelvloer. Hier is ook toegang tot de kruipruimte – ideaal voor extra opslag.
Begane grond
De entree van de woning komt uit in een verzorgde hal met garderoberuimte, toegang tot de kelder en een modern afgewerkte toiletruimte met luxe uitstraling. De sfeervolle woonkamer vormt samen met de aangrenzende tuinkamer (totaal 38m²) een fijne leefruimte, voorzien van een luxe tegelvloer met comfortabele vloerverwarming. Dankzij de grote raampartijen en de schuifpui is er volop lichtinval en een prachtig vrij uitzicht over de naastgelegen landerijen. Binnen en buiten lopen hier naadloos in elkaar over. De separate eetkeuken (12 m²) is ingericht met een tijdloze, luxe keukenopstelling in hoekvorm, afgewerkt met een stijlvol composiet werkblad. De keuken is compleet uitgerust met moderne apparatuur, waaronder een inductiekookplaat, afzuigkap, koelkast, vrieskast, combi-oven en vaatwasser. Dezelfde hoogwaardige tegelvloer als in de woonkamer loopt hier door, wat zorgt voor een mooie, rustige eenheid.
Vanuit de keuken is de praktische bijkeuken bereikbaar, waar zich de aansluitpunten voor witgoed bevinden en de opstelplaats van de cv-installatie. Via deze ruimte is er directe toegang tot de carport, de oprit en – via de carport – tot de garage. Zeer functioneel én comfortabel.
Dubbele oprit, carport en ruime garage
Aan de rechterzijde van de woning ligt een royale oprit met carport, die toegang biedt tot de grote garage van 23 m². Deze garage is netjes afgewerkt, voorzien van dak- en muurisolatie, veel bergruimte én een smeerput – ideaal voor de klusser of autoliefhebber.
Achter de garage bevinden zich nog twee extra bergingen (22 m² totaal). Ook aan de linkerkant van het huis is een tweede oprit – perfect voor het parkeren van een camper, caravan of aanhangwagen. Een mooie houten poort biedt toegang tot de tuin en het achtererf.
Eerste verdieping
Op de eerste verdieping geeft de overloop toegang tot drie volwaardige slaapkamers, stuk voor stuk netjes afgewerkt en goed bemeten. De badkamer is in 2015 vernieuwd en uitgevoerd in een moderne stijl met een inloopdouche, tweede toilet en een wastafelmeubel – luxe en praktisch tegelijk.
Tweede verdieping
Een vaste trap leidt naar de tweede verdieping. Hier vind je een overloop met dakkapel en twee extra slaapkamers, beide voorzien van dakramen die zorgen voor een prettige lichtinval. In de schuine kanten van de kamers zijn handige schuifkasten geplaatst – ideaal voor het opbergen van spullen zonder ruimteverlies.
Buitenleven met vrij uitzicht
De tuin maakt het plaatje helemaal compleet.
Zowel de voor-, zij- als achtertuin zijn met zorg aangelegd en uitstekend onderhouden.
De achtertuin – circa 14 meter diep en 13 meter breed – is werkelijk een oase van rust. Met twee grote terrassen, een stijlvolle overkapping, fraaie borders én een adembenemend vrij uitzicht over de landerijen, is dit dé plek om van het buitenleven te genieten. Of je nu houdt van tuinieren, loungen of samen eten in de buitenlucht: hier kan het allemaal!
Duurzaam & energiezuinig
De woning is gebouwd in 1987 en goed geïsoleerd (dak-, spouw- en vloerisolatie). Voorzien van hardhouten kozijnen met HR-glas en deels rolluiken. De begane grond beschikt over vloerverwarming en de cv-installatie (Nefit HR-combiketel) zorgt voor aangenaam comfort. Daarbovenop zijn er 10 zonnepanelen aanwezig, wat zorgt voor lagere energielasten. Niet voor niets draagt deze woning energielabel B!
Ligging & bereikbaarheid
Je vindt deze woning in een rustige, doodlopende straat aan de rand van Maasbracht – met weids uitzicht over de omliggende velden.
Maasbracht is gelegen aan de Maas en de autosnelwegen A2 en A73, wat zorgt voor een uitstekende bereikbaarheid. Het dorp biedt een compleet voorzieningenaanbod met winkels, basisscholen, sportclubs en recreatiemogelijkheden aan de Maasplassen. Middelbaar onderwijs is bereikbaar op slechts 10 minuten fietsen.
Dankzij de gunstige ligging zijn steden als Maastricht, Roermond, Venlo, Eindhoven en zelfs Düsseldorf goed en snel bereikbaar.
Onze presentatiebrochures en advertenties worden met grote zorgvuldigheid vervaardigd.
Aan eventuele afwijkingen op de gegeven informatie en tekeningen kunnen geen rechten worden ontleend.
Kenmerken
| Overdracht | |
| Koopprijs | € 550.000,- k.k. |
| Status | Verkocht |
| Aanvaarding | In overleg |
| Bouw | |
| Type object | Woonhuis |
| Bouwjaar | 1987 |
| Soort | Eengezinswoning |
| Type | Vrijstaande woning |
| Dak type | Zadeldak |
| Isolatievormen | Dakisolatie, Muurisolatie, Vloerisolatie, Dubbelglas, Volledig geïsoleerd, HR glas |
| Oppervlaktes en inhoud | |
| Woonoppervlakte | 150 m2 |
| Perceel | 494 m2 |
| Inhoud | 650 m3 |
| Indeling | |
| Aantal kamers | 9 |
| Aantal slaapkamers | 5 |
| Aantal badkamers | 1 |
| Locatie | |
| Ligging | Aan rustige weg, In woonwijk, Vrij uitzicht, In bosrijke omgeving |
| Tuin | |
| Type | Achtertuin, Voortuin, Zijtuin |
| Staat | Fraai aangelegd |
| Ligging | Zuidwest |
| Achterom | Ja |
| Energieverbruik | |
| Energielabel | B |
| Uitrusting | |
| Soorten warm water | CV ketel |
| Parkeer faciliteiten | Op eigen terrein |