Bouwjaar:
1930
Woonoppervlakte:
134 m2
Perceel:
325 m2
Omschrijving
Een zeldzame combinatie van royaal wonen, volledige privacy en een tuin van formaat — dit begane grond appartement biedt het allemaal…!
Soms komt er een appartement voorbij dat voelt als een volwaardige woning. Dit royale begane grond appartement aan de Bosstraat is zo’n plek. Met maar liefst 134 m² woonoppervlakte (inclusief 21 m² serre) én een uitzonderlijke tuin van 325 m², circa 26 meter diep, woont u hier gelijkvloers met een vrijheid die zelden wordt aangeboden.
Gelegen aan de rustige achterzijde van het karakteristieke pand (bouwjaar 1930), geniet u hier van optimale privacy en stilte — terwijl alle voorzieningen letterlijk om de hoek liggen.
Globale indeling
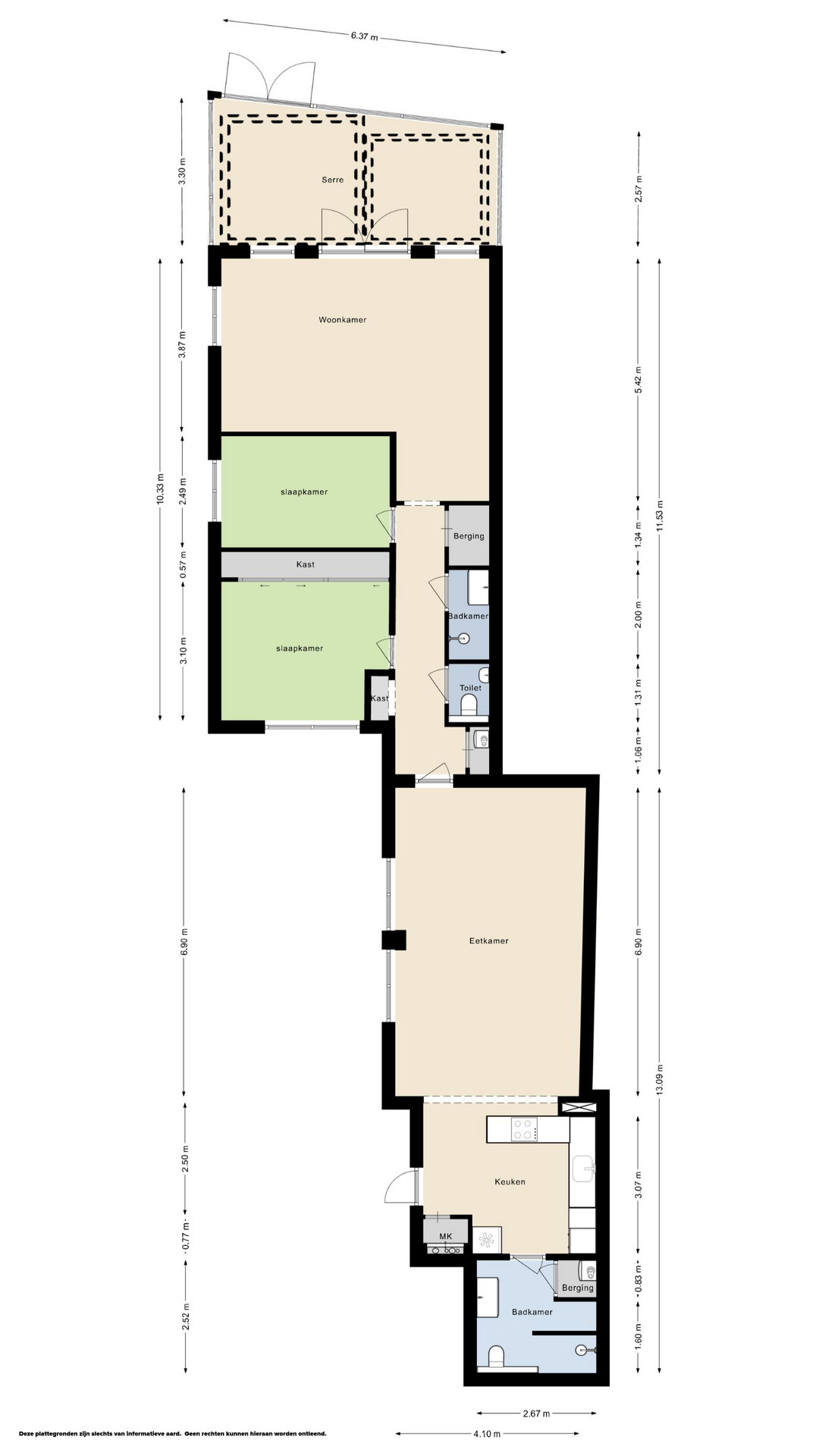
De ruime en doordachte indeling biedt optimaal wooncomfort. De royale woonkeuken (41 m²) vormt het hart van het huis: een riante eetkamer met moderne luxe keuken, voorzien van granieten werkblad en complete inbouwapparatuur (inductie, combi-oven, vaatwasser en koelkast) – perfect voor koken en samenzijn.
De woonkamer (27 m²) aan de tuinzijde staat in directe verbinding met de serre (21 m²). Openslaande deuren geven toegang tot het terras en bieden een vrij uitzicht op de diepe tuin.
Het appartement beschikt over twee comfortabele slaapkamers, waaronder een ruime hoofdslaapkamer met inbouwkast. Daarnaast zijn er twee eigentijds afgewerkte badkamers: één met inloopdouche, wastafelmeubel en toilet, en een tweede met douche en wastafelmeubel. Ideaal voor gasten of extra comfort.
Een tuin die u normaal alleen bij een vrijstaande woning vindt
De diepe, onderhoudsvriendelijke tuin is zonder twijfel een ‘Unique Selling Point’ van dit appartement. Hier ervaart u ruimte, groen en beschutting. Dankzij de ruime toegang via de dubbel openslaande elektrische poort kunt u één of zelfs twee auto’s op eigen terrein parkeren — uniek voor een appartement.
Het royale terras met prachtige overkapping/serre vormt een heerlijke plek om vroeg in het voorjaar al buiten te zitten of lange zomeravonden door te brengen. De serre sluit naadloos aan op de woonkamer, waardoor binnen en buiten moeiteloos in elkaar overlopen. Het tuinhuis biedt praktische bergruimte of plek voor hobby en tuinspullen.
Indeling
Leefruimte met sfeer en comfort
De indeling is ruim en doordacht, met volop leefcomfort. Royale woonkeuken – het hart van het huis (41 m²).
De zeer riante eetkamer met open keuken vormt een warme ontmoetingsplek. De moderne, luxe keuken met granieten werkblad en complete inbouwapparatuur (inductie, combi-oven, vaatwasser, koelkast) nodigt uit tot uitgebreid koken en tafelen met familie en vrienden.
Woonkamer en serre – licht en tuincontact
De woonkamer (27 m²) ligt aan de tuinzijde en staat in directe verbinding met de serre (21 m²). Via de openslaande deuren loopt u zo het terras op. Het uitzicht op de diepe tuin geeft een gevoel van vrijheid en rust, iedere dag opnieuw.
Twee slaapkamers en twee badkamers – ideaal en comfortabel
Het appartement beschikt over twee fijne slaapkamers, waaronder een ruime hoofdslaapkamer met praktische inbouwkast (schuifdeuren). Daarnaast zijn er twee luxe, eigentijds afgewerkte badkamers:
• Badkamer met inloopdouche, wastafelmeubel en toilet
• Tweede badkamer met douche en wastafelmeubel
Ideaal voor gasten, logees of gewoon extra comfort.
Praktisch en duurzaam
In 2012 is het appartement volledig gerenoveerd, gemoderniseerd en verduurzaamd. Daarbij is veel aandacht besteed aan comfort en isolatie:
• Kunststof kozijnen met HR++ beglazing
• Geïsoleerd dak (vernieuwd in 2012)
• Geïsoleerde vloeren met vloerverwarming
• Bosch HR-combiketel (2012)
• Energielabel C
• Brandmeldinstallatie
De tijdloze tegelvloer met vloerverwarming zorgt door het hele appartement voor een aangenaam woonklimaat.
Daarnaast is er een berging in het souterrain én een gezamenlijke fietsenstalling.
Een fijne en betrokken VvE
De Vereniging van Eigenaren is goed georganiseerd en financieel gezond (bijdrage € 266,– per maand). Er wordt naar elkaar omgekeken. Er is zelfs een gezamenlijke kruidentuin met druiven, men zorgt samen voor het schoonmaken buiten en rondom het pand en één keer per jaar is er een gezellige barbecue. Een prettige woonomgeving waar buren elkaar nog kennen.
Centraal wonen in het groene Midden-Limburg
Echt is een levendig en compleet dorp met winkels, scholen, sportfaciliteiten en medische voorzieningen. Het NS-station ligt op slechts vijf minuten lopen en via de N276 en de A2 en A73 zijn steden als Roermond, Maastricht en Eindhoven snel bereikbaar. Voor ontspanning ligt de natuur letterlijk om de hoek: Kranenbroek, De Doort en de Maasplassen bij Stevensweert en Ohé en Laak bieden volop wandel-, fiets- en waterplezier.
Dit is geen standaard appartement.
Dit is gelijkvloers wonen met ruimte, privacy en een tuin waar u iedere dag van geniet. Een plek waar u zich direct thuis voelt. Kom kijken — en ervaar het zelf.
Onze presentatiebrochures en advertenties worden met grote zorgvuldigheid samengesteld.
Aan eventuele afwijkingen in de verstrekte informatie en tekeningen kunnen geen rechten worden ontleend.
Kenmerken
| Overdracht | |
| Koopprijs | € 325.000,- k.k. |
| Status | Verkocht onder voorbehoud |
| Aanvaarding | In overleg |
| Bouw | |
| Type object | Appartement |
| Bouwjaar | 1930 |
| Soort | Benedenwoning |
| Woonlaag | |
| Aantal woonlagen | 2 |
| Dak type | Plat dak |
| Isolatievormen | Dakisolatie, Vloerisolatie, Dubbelglas |
| Oppervlaktes en inhoud | |
| Woonoppervlakte | 134 m2 |
| Inhoud | 400 m3 |
| Indeling | |
| Aantal kamers | 6 |
| Aantal slaapkamers | 2 |
| Aantal badkamers | 2 |
| Locatie | |
| Ligging | Aan rustige weg, In woonwijk, In bosrijke omgeving |
| Tuin | |
| Type | Achtertuin |
| Staat | Verzorgd |
| Ligging | Noord |
| Achterom | Ja |
| Energieverbruik | |
| Energielabel | C |
| Uitrusting | |
| Soorten warm water | CV ketel |
| Parkeer faciliteiten | Op eigen terrein |