Verkocht

Abeelstraat 8

6101 BL Echt

€ 325.000,- k.k.


Bouwjaar:
1966

Woonoppervlakte:
108 m2

Perceel:
250 m2

Omschrijving

Ruime gezinswoning met aanbouw, inpandige garage, veel hobbyruimte en zonnige tuin in hartje Echt!
Stel je voor: een sfeervolle woning op een rustige plek, met alle voorzieningen binnen handbereik én volop ruimte om jouw woonwensen waar te kunnen maken. Abeelstraat 8 in Echt is precies zo’n huis!

Deze verrassend ruime woning uit 1966 biedt met een woonoppervlakte van 108m², inhoud van 530m³ en een mooi perceel van 250 m² enorm veel mogelijkheden. Bovendien is de woning keurig verzorgd en perfect voor wie extra ruimte zoekt voor hobby’s of een kantoor of praktijk aan huis. Hier kun je echt jouw droomwoning creëren!

Globale indeling
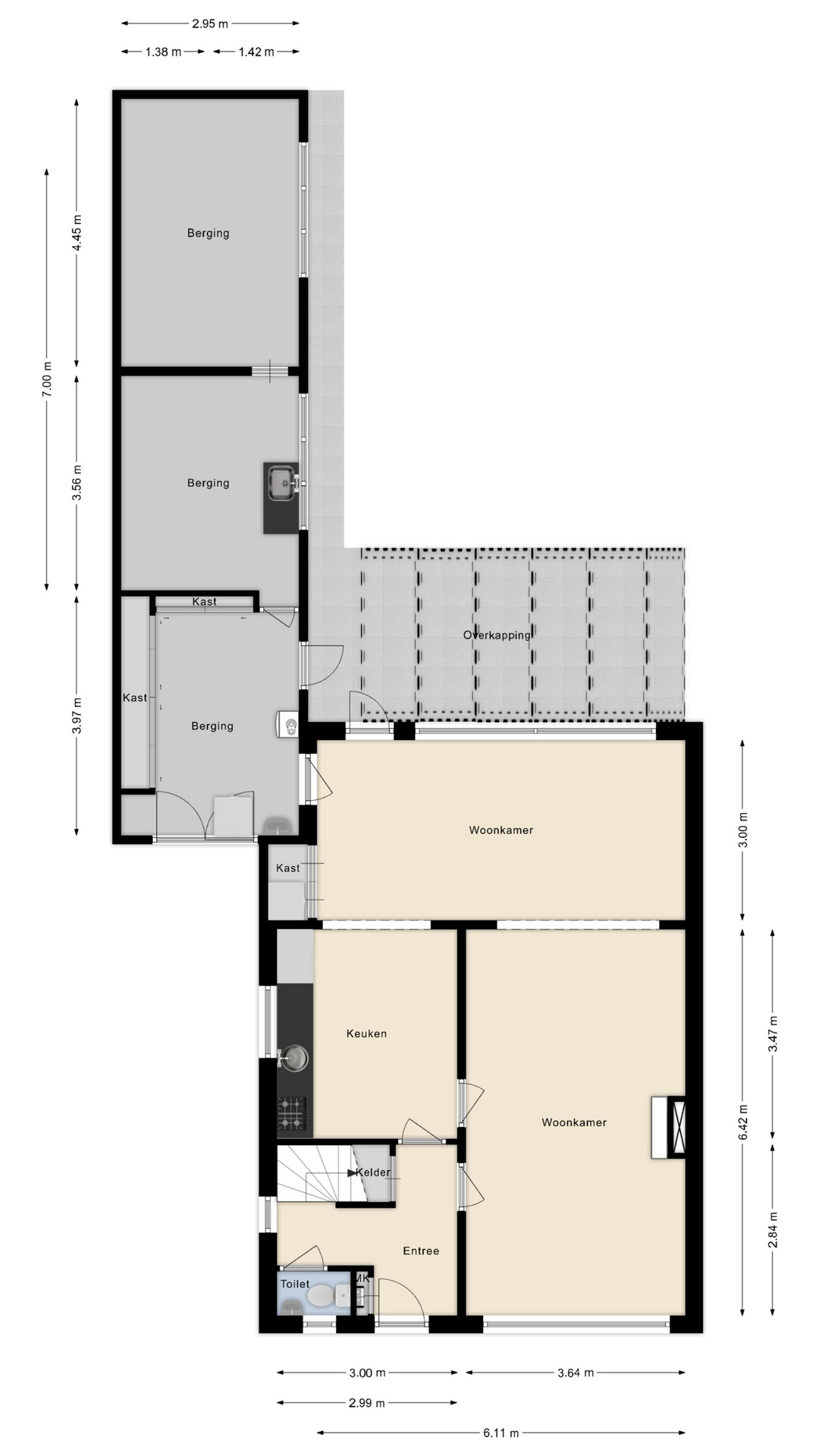
Deze woning is verdeeld over twee woonlagen, plus een praktische kelderkast en zolder. De begane grond beschikt o.a. over een royale & sfeervolle woonkamer met aangebouwde tuinkamer (44m²), open keuken (10m²) voorzien van een zeer nette installatie met apparatuur en een drietal inpandige bergruimtes (totaal 36m²). De verdieping telt drie ruime slaapkamers met veel kastruimte en een keurig verzorgde en neutraal afgewerkte badkamer. De 2e verdieping betreft een fijne bergzolder. Een woning met royale en praktische ruimtes en veel mogelijkheden.

Oprit en inpandige (garage) berg-/ hobbyruimtes (totaal 36m²)
Een van de opvallende punten van deze woning zijn de inpandige bergruimtes met een totale oppervlakte van maar liefst 36m². De oprit biedt ruimte voor het parkeren van twee auto’s en toegang tot deze ruimtes. In eerste instantie de voormalige garage (12m²), welke is voorzien van handige bergkasten en een wastafel. Achtereenvolgens biedt de woning ruimte aan twee aanvullende berg-/ hobbyruimtes van respectievelijk 11m² en 13m². Ideaal voor wie op zoek is naar veel ruimte voor zijn hobby’s en/ of een kantoor of praktijk aan huis.

Perceel en tuin
De achtertuin maakt het plaatje helemaal compleet. Met 250m² aan oppervlakte voelt het perceel ruim en praktisch aan. De achtertuin is ca.12meter diep en 6meter breed en beschikt over een fijne stuk gazon (kunstgras) en mooie borders. De fraaie aluminium overkapping (611 x 305cm.) is zeer zeker de ideale plek om van deze mooie tuin te kunnen gaan genieten. Door de gunstige ligging en situering op het zuidoosten heeft de tuin een goede bezonning en optimale privacy te bieden.

Algemeen
De woning is gebouwd in 1966 en de huidige bewoner betreft de eerste eigenaar en heeft de woning altijd met veel zorg en liefde onderhouden. De daken, spouwmuren en vloeren zijn niet geïsoleerd. Het pand is voorzien van kunststof en houten kozijnen, nagenoeg geheel met HR-beglazing en deels rolluiken. De verwarmingsketel betreft een ATAG HR-combiketel (2024, huur).

Locatie
Abeelstraat 8 ligt in een rustige, kindvriendelijke woonwijk waar buren elkaar nog groeten. Het gezellige centrum van Echt, met zijn winkels, supermarkten, scholen en sportclubs, ligt op loop- of fietsafstand. Ook het NS-station ligt dichtbij.
Dankzij de snelle verbinding met de A2 en A73 ben je binnen 30-45 minuten in steden als Maastricht, Eindhoven, Venlo en zelfs Düsseldorf. Echt heeft daarmee een uitstekende centrale ligging en biedt alles wat je nodig hebt in de buurt.

Specifieke indeling

Begane grond
• Entree/hal: Ruime hal met toilet, meterkast en toegang tot de kelderkast.
• Woonkamer: De royale & sfeervolle woonkamer met aangebouwde tuinkamer (44m²) is voorzien van een gezellige
schouw met sierhaard. De massief eikenhouten balk in het plafond zorgt voor een extra mooie uitstraling. De grote
raampartijen en in de voor- en achtergevel zorgen voor veel lichtinval en een optimaal contact met- en toegang tot
de tuin.
• Keuken: De halfopen keuken is goed verzorgd en voorzien van de volgende installatie; een
gaskookplaat, afzuigkap, oven, magnetron en koelkast.
• Bergkast: Muurkast met aansluitpunten voor het witgoed.
• Inpandige (garage) berg-/ hobbyruimtes: Totaal 36m².

Oprit en inpandige (garage) berg-/ hobbyruimtes (totaal 36m²)
Een van de opvallende punten van deze woning zijn de inpandige bergruimtes met een totale oppervlakte van maar liefst 36m². De oprit biedt ruimte voor het parkeren van twee auto’s en toegang tot deze ruimtes. In eerste instantie de voormalige garage (12m²), welke is voorzien van handige bergkasten en een wastafel. Achtereenvolgens biedt de woning ruimte aan twee aanvullende berg-/ hobbyruimtes van respectievelijk 11m² en 13m². Ideaal voor wie op zoek is naar veel ruimte voor zijn hobby’s of kantoor of praktijk aan huis.

Eerste verdieping
• Overloop: Overloop met toegang tot drie slaapkamers en comfortabele badkamer.
• Slaapkamers: Drie ruime slaapkamers, respectievelijk 365 x 348, 368 x 283 met muurkast en 299 x 251cm.
groot. Slaapkamer 3 beschikt over een dubbele muurkast.
• Badkamer: De keurig verzorgde en neutraal afgewerkte badkamer is voorzien van een fijne douche, een toilet en
wastafel met meubel.

Tweede verdieping
• Zolder: Bereikbaar via een vlizotrap. Bergzolder (Nokhoogte circa 175-180cm.)

Perceel en tuin
De achtertuin maakt het plaatje helemaal compleet. Met 250m² aan oppervlakte voelt het perceel ruim en praktisch aan. De achtertuin is ca.12meter diep en 6meter breed en beschikt over een fijne stuk gazon (kunstgras) en mooie borders. De fraaie aluminium overkapping (611 x 305cm.) is zeer zeker de ideale plek om van deze mooie te kunnen gaan genieten. Door de gunstige ligging en situering op het zuidoosten heeft de tuin een goede bezonning en optimale privacy te bieden.

Algemeen
De woning is gebouwd in 1966 en de huidige bewoner betreft de eerste eigenaar en heeft de woning altijd met veel zorg en liefde onderhouden. De daken, spouwmuren en vloeren zijn niet geïsoleerd. Het pand is voorzien van kunststof en houten kozijnen, nagenoeg geheel met HR-beglazing en deels rolluiken. De verwarmingsketel betreft een ATAG HR-combiketel (2024, huur).

Locatie
Abeelstraat 8 ligt in een rustige, kindvriendelijke woonwijk waar buren elkaar nog groeten. Het gezellige centrum van Echt, met zijn winkels, supermarkten, scholen en sportclubs, ligt op loop- of fietsafstand. Ook het NS-station ligt dichtbij. Dankzij de snelle verbinding met de A2 en A73 ben je binnen 30-45 minuten in steden als Maastricht, Eindhoven, Venlo en zelfs Düsseldorf. Echt heeft daarmee een uitstekende centrale ligging en biedt alles wat je nodig hebt in de buurt.

Onze presentatiebrochures en advertenties worden met grote zorgvuldigheid vervaardigd. Aan eventuele afwijkingen op de gegeven informatie en tekeningen kunnen geen rechten worden ontleend.

Meer lezen...

Kenmerken

Overdracht
Koopprijs € 325.000,- k.k.
Status Verkocht
Aanvaarding In overleg
Bouw
Type object Woonhuis
Bouwjaar 1966
Soort Eengezinswoning
Type Geschakelde twee onder één kapwoning
Dak type Zadeldak
Isolatievormen Dubbelglas, Gedeeltelijk dubbelglas, HR glas
Oppervlaktes en inhoud
Woonoppervlakte 108 m2
Perceel 250 m2
Inhoud 530 m3
Indeling
Aantal kamers 7
Aantal slaapkamers 3
Aantal badkamers 1
Locatie
Ligging Aan rustige weg, In woonwijk, In bosrijke omgeving
Tuin
Type Achtertuin, Voortuin
Staat Verzorgd
Ligging Zuidoost
Achterom Nee
Energieverbruik
Energielabel E
Uitrusting
Soorten warm water CV ketel
Parkeer faciliteiten Op eigen terrein
Meer details...

Plattegronden